1、用途及適用范圍
XGL低電壓配電柜適用于額定電壓AC380V,負載總量不大于630A的三相三線制、四線制或五線制的低壓配電系統,作為作動力配電及照明之用。還可作籠型、繞線型電動機控制之用,以滿足各種生產機械的電控配套要求。是替代XL-15,XL -21等同類產品的理想產品。可廣泛應用于高層建筑、住宅、車站、港口、機場、醫院、影劇院、大型商業網站和工礦企業等。產品符合GB7251.1、IEC60439-1等標準。
2、型號及含義

3、結構特點
3.1 XGL低壓動力配電柜系封閉式,柜體采用通用柜型式,構架用8MF冷彎鋼板局部焊接組裝而成,以保證箱體的精度和質量。
3.2柜體按照現代工藝產品造型設計要求,美觀大方,面目一新。
3.3柜體正面一般有上下兩個門,上門可裝儀表和閘刀開關操作手柄,下門可裝指示燈及按鈕;也可以為單門。
3.4柜體面漆選用聚酯桔形烘漆,附著強力、質感好。柜體呈亞光色調,避免了眩目效應。
3.5柜體防護等級為IP30。
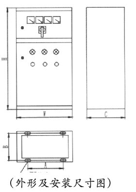
4、外形及安裝尺寸
XGL低壓動力配電箱外形及安裝尺寸見下圖。如用戶有特殊要求,可協商解決。

| 結構代號 | 外形尺寸 | 安裝尺寸 | |||
| 寬 | 高 | 深 | A | B | |
| XGL(A型) | 600 | 1800 | 400 | 450 | 350 |
| XGL(B型) | 800 | 2000 | 400 | 650 | 350 |
請認真填寫表單內容,咨詢回復的工作時間為:周一至周五,9:00至18:00,請耐心等待工作人員回復。